Oscar Tenreiro / 18 de Enero de 2014
He tratado de precisar mejor las fechas de los proyectos para el Conde-Ave. Bolívar sin que me haya sido posible llegar a toda la información. Pero haciendo deducciones sumadas a conversaciones con algunos de los protagonistas, he podido concluir que el proyecto del primer bloque del conjunto de viviendas incluido en la propuesta Ron Pedrique, a cargo del Arq. Oswaldo Lares, se terminó en 1964 y no en 1966 como escribí la semana anterior. Deduzco que empezó a construirse ese mismo año y se detuvo la obra al año siguiente hasta ser transformado en hotel a partir de 1968.
La propuesta de las mega-estructuras inspiradas en los planteamientos del Metabolismo japonés, que aumenta radicalmente las densidades, escala y dimensiones de lo que se había venido estudiando, se comienza a estudiar a comienzos de 1965; y el artículo de Anibal Nazoa aparecido en agosto de 1966 motivado por la decisión de suspender los estudios y hacer un parque, se refiere a ese proyecto y no al de Lares como escribí erróneamente.
También debo aclarar que para el momento de la concepción de ese proyecto aparentemente la firma BMPT (Bemergui, Menéndez, Posani y Tobito) no había sido constituida formalmente, si bien Posani, según entiendo, formó parte del equipo proyectista. Y es sin duda esa propuesta la que fijó las pautas, en términos de magnitudes y visión urbana, de lo que sería Parque Central, el conjunto que finalmente se construyó entre 1969 y 1975 incluyendo sólo los terrenos del lado Sur de la Avenida, la cual había mantenido su trazado original, hasta casi el borde del Parque de Los Caobos, para desde allí conectarse con la Autopista del Este cuya extensión hacia el Oeste de la ciudad había sido ya ejecutada.
********
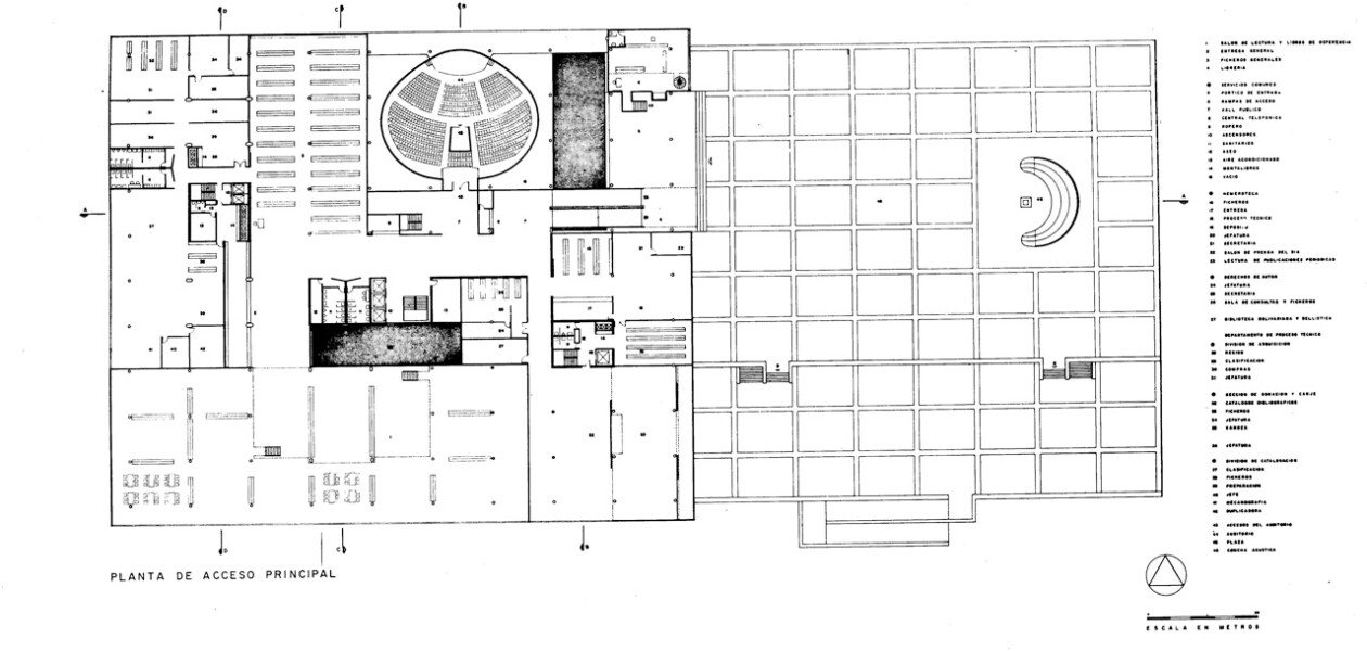
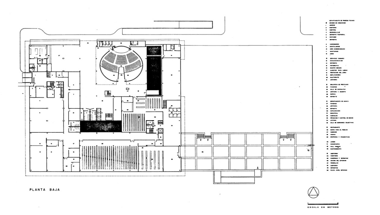
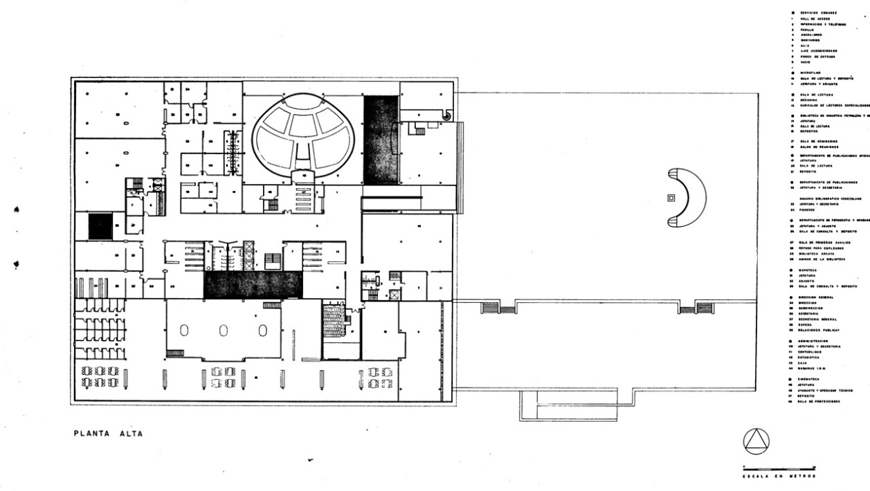
El colega Odart Graterol me escribe a propósito de la propuesta Ferris para La Hoyada haciéndome notar que Ferris había ganado un Concurso para la Biblioteca Nacional y el Archivo General de la Nación en un terreno distinto, que él suponía en la zona inmediata a la conexión de la Ave. Bolivar con la Autopista del Este, donde se encuentran hoy el Teatro Teresa Carreño y el Ateneo de Caracas. Su observación me recordó que ese proyecto había aparecido en la Revista Punto de nuestra Facultad; y en efecto está publicado en el Número 2, el de Marzo de 1961, que casualmente tengo en mi biblioteca. Incluyo aquí las imágenes que allí aparecieron, un proyecto de excelente factura, hecho con la principalísima participación de Jaime Hoyos Jaramillo, arquitecto colombiano, residente en Venezuela, con obra de mucho interés, parte de ella producto de colaboraciones con Ferris, obra que merece ser rescatada documentalmente y publicada como objeto de estudio.
Ese Concurso de Arquitectura fue el primero de la naciente democracia y con él se materializaba una aspiración de los arquitectos, manifestada insistentemente en esos años, que habría de tener un destino muy incierto como lo sabemos todos al constatar dos hechos notorios: el primero, que la mayor parte de los proyectos importantes del Estado Central se conceden a dedo, sin que se haya nunca redactado una normativa al respecto; y el segundo que un abrumador porcentaje de los concursos realizados ha terminado en una simple concesión de premios sin llegar a la construcción. Y precisamente este concurso vino a ser el inicio de esa funesta tradición: se cambió el terreno, en Quebrada Honda al comienzo del actual Boulevard Amador Bendayán y se encargó otro proyecto a Ferris en el nuevo emplazamiento de La Hoyada. Y nada se construyó. Hasta que Tomás Sanabria, escogido sin concurso, construyó ambas sedes junto al Panteón Nacional al norte del Centro Histórico de Caracas, entre 1973 y 1978-79.
En todo caso, creo que este capítulo de nuestra tradición arquitectónica merece toda la atención y por ello incluyo aquí lo que apareció en Punto hace casi 53 años como un tributo a dos arquitectos nuestros que dejaron obra enriquecedora.
*********
Volviendo a la Ave. Bolívar, pasaron algo más de 7 años en los que se mantuvo en suspenso cualquier decisión que comprometiera de modo permanente el uso de los terrenos, un tipo de parálisis que fue en cierta manera característico de la situación política de entonces: toda decisión que requiriera procesos complejos para su culminación y podía tener consecuencias económicas o políticas de cierto alcance, simplemente se evitaba. Sin embargo, mantener ociosos unos terrenos tan importantes en el corazón mismo de la capital era permanente objeto de presión en la opinión pública. Ya en 1965, con motivo de los preparativos para la celebración en 1967 de los cuatrocientos años de la fundación de Caracas se decidió ubicar en el lado Sur, en parte de los terrenos de El Conde, una estructura desmontable, es decir, de uso efímero, que albergaría un espectáculo audiovisual (con el nombre de Imagen de Caracas) para ser presentado durante todo 1967. Y aproximadamente por esas mismas fechas, del lado Norte se construyó un parque de diversiones y exposiciones temporales (El Parque el Conde) a base de estructuras livianas recubiertas con paneles de fibra de vidrio que funcionó aproximadamente desde 1965 hasta 1972-73, proyectado por el Arq. Jorge Castillo. Esta última intervención tuvo éxito y fue muy visitada, se realizaron en los distintos pabellones exposiciones con mucha asistencia de público, entre las cuales, en 1971, una correspondiente a las Jornadas Nacionales de Arquitectura y Urbanismo y la Bienal de Arquitectura de esa fecha, eventos en cuya organización participé activamente.
*********
Imagen de Caracas fue uno de esos nichos creados por el juego político venezolano y alimentados como se ha hecho habitual aquí, por buenas dosis de dinero, un tanto sobrante siempre en un petroestado, y la improvisación entusiasta y desprevenida. Un nutrido grupo de arquitectos, profesores, músicos, escritores, pintores, fotógrafos, cineastas y periodistas, se dedicaron a darle forma a un «…acontecimiento cultural típico de un país subdesarrollado, en el cual se volcó la intelectualidad de la izquierda capitalina…» tal como lo describió uno de los principales miembros del grupo, Juan Pedro Posani, actual Director del Museo de Arquitectura revolucionario, al ser entrevistado por Silvia Lasala para el libro sobre el Plan Rotival del Instituto de Urbanismo de la UCV que he mencionado varias veces. Financiados generosamente por el Concejo Municipal de Caracas y bajo la dirección del promotor urbano, coleccionista de arte y progresista de vieja data, Inocente Palacios, quien hacía de representante ante la burocracia oficial, el grupo se dedicó a hacer gala de sus capacidades inventivas y de su habilidad para convencer a los burócratas de la idoneidad de sus puntos de vista sobre la historia de la ciudad. Después de miles de pies de películas rodadas y sólo parcialmente editadas con el apoyo (como extras) del ejército venezolano, luego de esquemas de escenografías, maquetas, grabaciones, ejercicios gráficos, sumados a un largo etcétera y una muy intensa propaganda que hacía pensar que se trataría del espectáculo audiovisual más importante del siglo, el Concejo Municipal terminó quitando el subsidio que amenazaba aumentar indefinidamente. De la experiencia quedaron unas pocas semanas de espectáculo durante 1967 con una concurrencia más bien escasa, una fuerte suma de deudas adquiridas y un enorme galpón que albergaba el espectáculo cuya escala puede verse en una de las fotos que acompaño, (tomada del ensayo de Lasala), instalado en una parte de los terrenos de El Conde. Construido con andamios de la patente italiana Dalmine y cubierto con lámina metálica, fue desmontado a finales de 1967, el año cuatricentenario de la fundación de Caracas, que también fue el año del terremoto de Julio.
********
El Parque de El Conde de Jorge Castillo tuvo mucha mejor suerte, en gran parte porque fue una respuesta directa a una necesidad planteada, la del uso colectivo de unos terrenos disponibles sin comprometer su destino definitivo; y en segundo lugar porque como parque de diversiones en ese punto de la ciudad, de muy buen acceso y disfrutando de las ventajas de la centralidad, resultaba un servicio colectivo muy a la mano. Cumplió pues durante un cierto número de años como lugar de recreación y por otra parte albergó exposiciones informativas gubernamentales en diversas oportunidades.
Castillo me hizo llegar fotos que aquí muestro, las cuales acompaño con las que conservo de la exposición que fue montada en uno de los pabellones, el cilíndrico que aparece en una de las fotos, durante la celebración de las Jornadas Nacionales de Arquitectura y Urbanismo y la Bienal de Arquitectura de 1971 que como ya dije, contribuí a organizar. La exposición, que llevó el nombre de Caracas, Ciudad Reto pretendía despertar conciencia sobre algunos de los más acuciantes problemas de la ciudad. En alguna oportunidad futura hablaré sobre ella y sus consecuencias. Muestro aquí algunas imágenes y una reproducción del afiche de las Jornadas.
*********
Los años pues que transcurrieron entre 1962 y 1969 fueron muy poco positivos para la Avenida Bolívar y sólo dieron lugar a las intervenciones provisorias que he descrito. Comenzaba sin embargo en esos años a tomar forma, impulsada sobre todo por la propuesta metabolista, la noción de que los terrenos de El Conde, Norte y Sur, debían ser objeto de una explotación super-intensiva. Que se veía, o así parecía según el discurso de sus autores, como una primera muestra de lo que debía ser el centro de la ciudad. Nunca se dijo, por supuesto, y ni siquiera se adelantaron algunas ideas al respecto, cómo podría lograrse esa reproducción de escalas, asunto que no debe extrañar porque de ninguna manera la normativa que regía las áreas aledañas a la Avenida permitiría nunca que tal cosa sucediese. Era charlatanería en suma. Presuntuosa y recubierta de un barniz de actualidad, pero charlatanería pura y simple.
Pese a todo. el próximo paso a darse, iba a recoger, para bien o para mal, el tema de la nueva escala.





















